受限于MOS管的驅動閾值,在許多的應用場景中無法直接使用MCU或者SOC的GPIO電平驅動MOS的導通與關斷,此時需要在MOS的G極處增加一個柵極驅動電路,實現GPIO電平可以驅動MOS。
€1.BJT驅動PMOS
如圖6-1演示了PMOS的自驅效應,當PMOS的G極連接S極時,VGS=0V,PMOS便會自開啟,那么如果在PMOS的G極與GND之間增加一道SW開關,那么就可以實現G極電位在GND和Vin之間切換,那么就可以通過SW來控制PMOS的開啟與關閉。


圖6-1:PMOS的自驅效應
將圖6-1中的SW開關更換為三極管BJT,如 圖6-2 ,那么就是一個典型的BJT驅動高邊PMOS的電路,其中C1,C2,Zener非必要。C1用做加速BJT打開,C2用做BJT快速關斷,Zener用做VGS鉗位,避免瞬時電壓超過MOS的VGSmax耐壓從而損壞MOS。


圖6-2:BJT驅動PMOS電路
R1和R2在一條路徑上可以調節分壓,也即調整G極電位,Q2關斷時,VG=VS,VGS=VG-VS=0V,Q1導通時,VG=Vin×{R2/(R1+R2)},VS=Vin,那么VGS=Vin×{R2/(R1+R2)}-Vin。當R1很大,R2很小,VGS≈Vin,此時如果VGS接近或超過Q1的GS耐壓值VGSS,會損壞PMOS,那么這時就可以調整R1,R2的比例,將導通時VGS值調整至-VGSS<VGS<VGSTHmin。
€2.BJT驅動NMOS
因為NMOS經常用作低邊開關,NMOS的低邊開關很容易驅動,一般都不需要額外增加驅動電路。如圖6-3是帶電荷泵BJT驅動NMOS的高邊開關,但很不常用。如果板級有額外高于Vin的電壓Vdd,則可以去掉Charge Pump,直接使用分立開關控制Vdd和G極的通斷。如果Charge Pump支持en使能,那么就可以去掉去掉G極驅動NMOS,直接使用GPIO控制Charge Pump的en,使能Charge Pump,輸出高電壓,干路MOS導通,不使能Charge Pump,不輸出高電壓,干路NMOS關斷。


圖6-3:帶電荷泵BJT驅動NMOS高邊開關
€3.設計示例
*設計背景:*設計一個高邊負載開關,輸入電壓為24V,輸入電流為5A,使用MCU的GPIO控制導通與關斷,GPIO的電平為3.3V。
*設計分析:*這里如果選用NMOS,則需要有高于24V的電壓施加給柵極,除了板級要么沒有大于24V的電壓,要么增加Charge pump,都不利于簡化設計,降低成本,這里還是選擇低壓功率PMOS。
器件選型:根據VDSS>24V,IDSS>5A,Vin=24V,G極施加電平可以自取24V,并且增加BJT驅動電路可以做到可調,所選PMOS的VGSTH和VGSS耐壓可以比較寬泛。對于選用的BJT,MOS的G極電流本就不大,可以選用普通的NPN型小信號BJT,讓其工作在飽和區即可,基極電流Ib可以稍大,此處選用BJT的要求并不多,耐壓>24V,成本低廉。這里選用LRC的PMOS:LP73027DT3WG,NPN:L2SC4081ST1G,相關參數如圖6-4至 圖6-6 **


圖6-4: LP73027DT3WG最大額定參數


圖6-5:LP73027DT3WG電氣參數


圖6-6:L2SC4081ST1G電氣參數
*設計結果:*如 圖6-7 ,Ctrl輸出3.3V高電平時,BJT導通,R1和R2組成分壓電路,當R1遠大于R2,Vg-Vs≈24V,PMOS導通;Ctrl輸出0V低電平時,BJT關斷,此時Vg-Vs≈0V,PMOS關斷。


圖6-7:設計結果
*功耗分析:*L2SC4081ST1G導通時,LP73027DT3WG也導通,此時電阻R1和R2串接在Vin和GND之間,存在電流消耗,根據P=U²/R,R越大,功耗越小,這也就是R1取值比較大的原因之一。L2SC4081ST1G導通也有電流損耗,雖然建議Ib稍大,但不能過于大,建議取Ib=1mA為通用計算取值。
€4.使用舉例


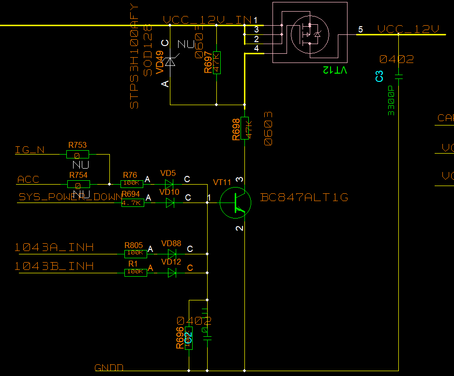
圖6-8:實例1
如圖6-8所示是VT11驅動VT12,VT11的基極額外使用二極管搭建了一個簡易或門,允許多個信號驅動VT11導通,從而打開VT12。


圖6-9:實例2
如圖6-9所示是VT33驅動VT20,VCC=3.3V,使用的PMOS其VGSth=-3V~-1V,X9H_PWR_ON電平為1.8V,那么1.8-3.3=-1.5V,剛好處于VGSTH之間,存在導通隱患,所以增加一個VT33驅動電路。如果X9H_PWR_ON電平是3.3V,那么就可以直接驅動VT20。


圖6-10:實例3
如圖6-10所示是Q1驅動Q8,C623既可以加速R419固定電位,也可以控制吸納涌入電流。R229為調試跳線0Ω電阻,這里額外注意R548和R420的電阻相互位置,是避免分壓效應的一種排布。
〈烜芯微/XXW〉專業制造二極管,三極管,MOS管,橋堆等,20年,工廠直銷省20%,上萬家電路電器生產企業選用,專業的工程師幫您穩定好每一批產品,如果您有遇到什么需要幫助解決的,可以直接聯系下方的聯系號碼或加QQ/微信,由我們的銷售經理給您精準的報價以及產品介紹
聯系號碼:18923864027(同微信)
QQ:709211280

